

Villa 4 pièce(s) 2 chambre(s) 132 m²
Buis-les-Baronnies (26170)A propos de ce bien
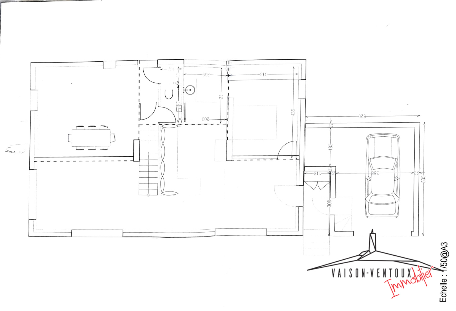
Entre Vaison la Romaine (20mn) et Buis les Baronnies (10mn) dans un cadre verdoyant, venez découvrir cette villa orientée sud, à terminer. Vous trouverez au rez de chaussée un vaste séjour et cuisine américaine à réaliser de 90 m². Possiblité d'une troisième chambre, une salle d'eau... L'étage est composé de deux chambres dont une avec salle de bain, un wc et un pallier. Le sous sol de 51 m² est composé de deux pièces de stockage et d'une cave. La surface est de 184 m² dont 132 m² habitables. Un garage de 22 m² reste à construire si vous le souhaitez (prévu dans la permis de construire). Le terrain de 7750 m² dont une grande partie de bois est piscinable. Il est possible d'acquerir une parcelle de plus de 1 hectare en face de la maison et en bord de rivière, cultivée de vignes. A visiter sans tarder.
Caractéristiques de ce bien
- Surface 132 m²
- terrain 7 763 m²
- séjour 90 m²
- 2 chambre(s)
- 1 salle(s) de bain
- construit en 2012
- cuisine
- Chauffage individuel : cheminée (bois)
- exposition Sud
- 2 niveau(x)
- cave
- arboré
- piscinable
Diagnostics énergétiques
Diagnostics énergétiques
Informations financières
Autour du bien
-
Commerces et santé
-
Loisirs
-
Ecoles
-
Transports
-
Pratique