

Terrain à batir 1335 m²
Vaison-la-Romaine (84110)A propos de ce bien
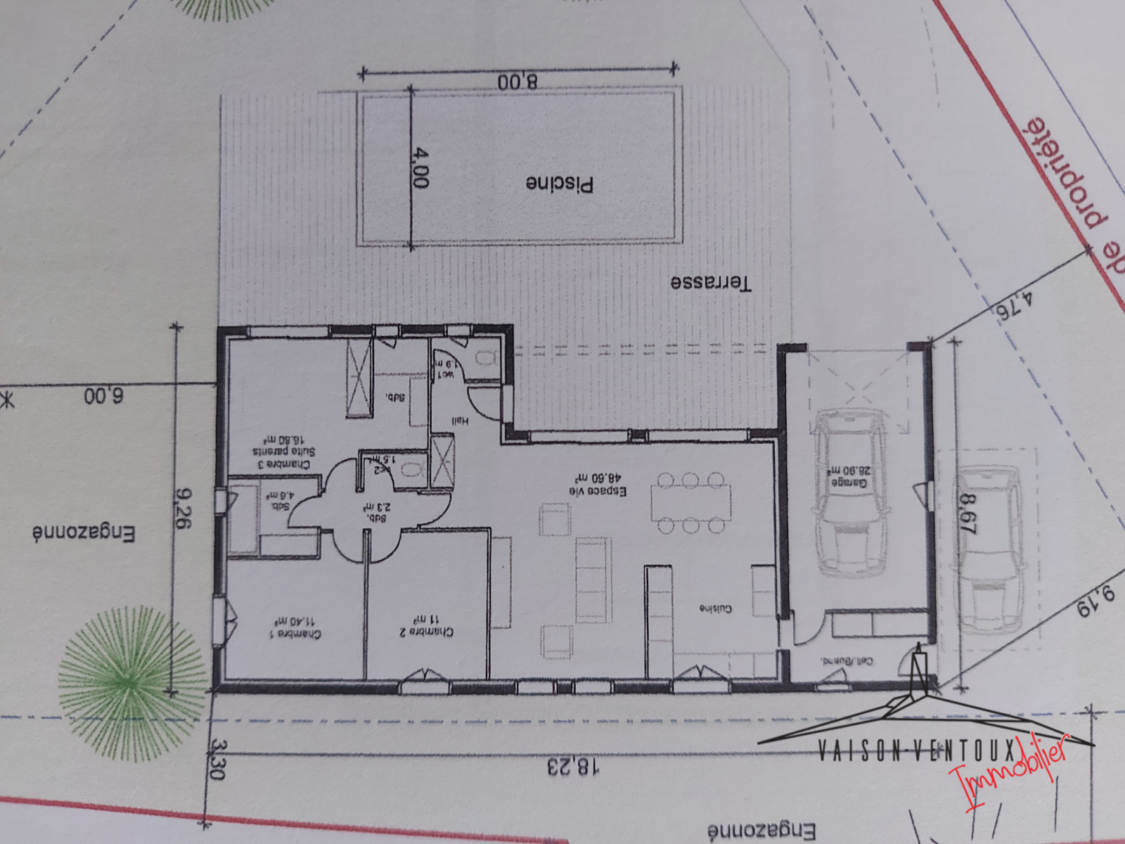
A 5 mn à l'Est de Vaison la Romaine, venez découvrir ce joli terrain de 1350 m² arboré, exposé plein sud avec un permis de construire pour une habitation de 100m² habitables, un garage et une piscine. L'habitation est prévue avec un séjour, une cuisine, 3 chambres, une salle d'eau et un wc. Possibilité d'apporter des modifications au permis de construire. Ce terrain est situé au milieu des vignes et non loin d'une rivière. Rare à la vente.
Caractéristiques de ce bien
- terrain 1 335 m²
- exposition Sud
- vue vignes et rivière
Diagnostics énergétiques
Diagnostics énergétiques
Informations financières
Autour du bien
-
Commerces et santé
-
Loisirs
-
Ecoles
-
Transports
-
Pratique